轩怡家装| 中山130平现代意式!无主灯+开放格局装出通透感
家早已超越了单纯的居住功能,更是可居可游、安顿身心的精神场域。本期分享一套位于中山的130m²住宅,轩怡家装以现代意式风格为基调,通过精妙设计手法打破壁垒、重组空间,为业主量身打造理想家。
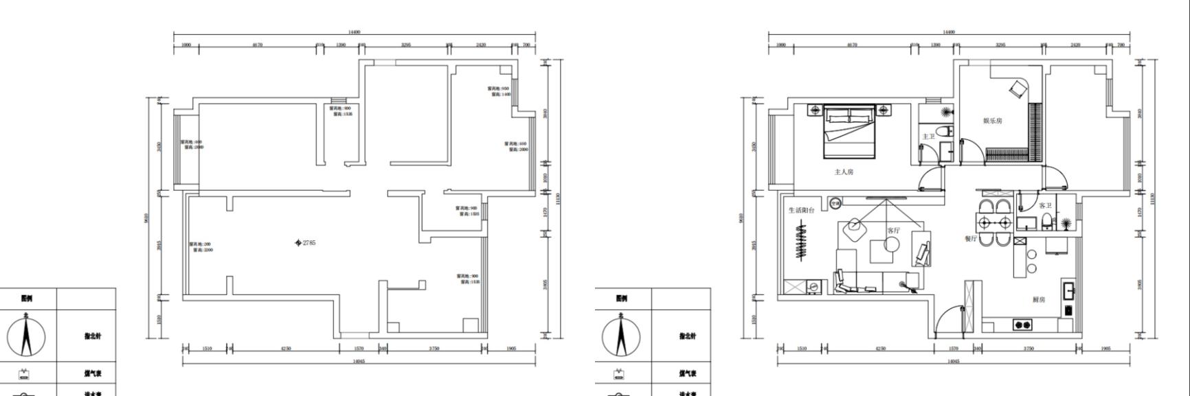
案例信息
地点:中山小区:中澳滨河湾户型:130㎡3房2厅风格:现代意式风

#设计亮点
视觉向上:无主灯设计避免大型吊灯的压抑感,拉伸纵向视觉高度,更显清爽高阔。
格局打开:拆除原有隔墙,打造与客厅、餐厅连贯互通的开放式厨房,引入自然光,优化动线。
功能叠加:重构传统空间定义,利用定制柜将书房、阅读角、衣帽间融合于一室,提升空间利用率。
1玄关:光影绘就的归家序曲

极简的设计语言在玄关书写仪式感。一束来自“小山丘”射灯的光晕,由深至浅地洒落,仿佛为归家的人点亮温暖的指引。这种克制的设计,瞬间将外界的纷扰隔绝,让心回归宁静。
2客厅:黑白木的三重奏,于克制中见松弛

无主灯设计的天花板留白,与温润的木质地板上下呼应,奠定了客厅开阔通透的双重基调。经典的黑、白、木三色奏响色彩乐章:纯白天花带来轻盈感,黑色真皮沙发沉稳静谧,木地板的自然肌理则注入家的温度。三者比例得当,在克制与松弛间找到了精妙的平衡点。

视觉焦点落于电视背景墙。白色岩板为底,冷静而现代;一侧的木格栅纵向延伸,以清晰的线条感打破了平面的单调。

阳台被完全纳入客厅范畴,以“无界”之姿扩大空间感。一侧是通顶收纳柜,将生活琐碎完美隐藏;另一侧则设置为饮茶区,铺陈出淡雅闲适的生活意境。
3餐厅:打造互动型餐厨体验

餐厅里,天然胡桃木餐桌成为主角,上方垂落的艺术吊灯勾勒出用餐区的中心感。质感从不源于繁复的堆砌,而在于对材质本身美感的信任,以及纯净、质朴的居家主义。
4厨房:理性美学与社交场域

将封闭空间打开后,开放式厨房成为家的社交心脏。简洁的橱柜色彩与客厅风格连贯,墙面延伸出的吧台充当了半隔断,既界定了功能区域,又保持了空间的连贯性,完成了生活的日常叙事。
5多功能室:重构定义的空间效率

L型定制柜将书桌与到顶衣柜无缝连接,既是居家办公空间,也是安静的阅读角,也是容量十足的衣帽间。
6主卧:织就一场休憩的美学

深色胡桃木地板沉淀出安稳、舒适的质感,半墙高的杏色软包背景墙,则如同破晓时分的微光,温柔而安然。

全景窗搭配轻盈的杏色纱帘,仿佛为空间滤去了所有喧嚣,共同织就了一场关于休憩的静谧美学。
7卫生间:实用主义的修辞学

卫生间湿区采用半边黑框玻璃隔断,实现了干湿分离的同时,保证了视觉的通透感。镜柜的设计更是巧妙,不仅提供储物空间,更在视觉上放大了小空间的体量。
装修质感不在于面积的大小,而在于如何通过设计,让空间都服务于居住者的真实需求。当意式的浪漫理性与现代的留白哲学相遇,家便超越了物理界限,成为真正可居可游、滋养身心的地方。

